9月1日中午13點38分左右,江蘇大劇院在建工地外立面突發大火,現場濃煙滾滾,火勢異常兇猛。相隔4個月,坐落于南京河西新城、堪稱當地文化地標建筑、有“中國最大的現代化大劇院”之稱的江蘇大劇院再次發生火災。火災事件讓我們又一次加深了對幕墻防火封堵重要性。
幕墻防火封堵 至關重要
建筑幕墻一般應用在人群密集的大型公共建筑或重要的高層、超高層建筑外墻上,其火災危險性較大。這是因為一般幕墻用玻璃、石材、復合鋁板均不耐火,受熱或遇火燒時易變形、破碎,造成幕墻大面積掉落,同時火焰會從幕墻破碎洞口的外側卷進上層室內。

此外,玻璃、石材是脆性材料,溫度達到250℃時玻璃即會炸裂,造成安全隱患。垂直幕墻與建筑物各樓層樓板、房間間墻間的縫隙,也是火災發生時煙火擴散的途徑。
由于建筑構造的要求,在幕墻和樓板之間均留有較大的縫隙,若不對其進行密封處理或密封處理不當,煙火就會由此向上擴散,造成蔓延。為提高幕墻的耐火極限,延長幕墻抵御火災的時間,阻止火災發生時煙火擴散,盡量減少火災帶來的損失,幕墻與其周邊防火分隔構件間的縫隙、與樓板或隔墻外沿間的縫隙、與實體墻面洞口邊緣間的縫隙等,均應進行防火封堵設計。

“防火封堵是目前建筑設計中應用比較廣泛的防火、隔煙方法,該方法通過采用防火封堵材料對建筑尤其是高層建筑的防火墻、管道井、強弱電橋架等存在的孔洞或容易形成類似煙囪的縫隙(包括幕墻的層間縫或防火墻墻頭縫等)進行封堵,從而隔斷火源,使其不穿往其他防火分區或樓層,以達到控制火勢、減少火災損失的目的。”
一般而言,防火封堵包括各種貫穿物穿墻、穿樓板的細部構造和各種結構縫的處理。防火封堵材料或封堵系統應經過國家認可的專業機構進行測試,合格后方可應用于實際幕墻工程。

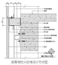
常用的玻璃幕墻封堵做法是在玻璃幕墻與每層樓板、隔墻處的縫隙采用非燃性封縫材料填實。樓板處的封堵用一條L型鍍鋅鐵皮固定在幕墻的橫檔上,再在鐵皮上面鋪非燃性封縫材料(如巖棉、石棉、玻璃渣、防火堵料等),最后再用非燃材料(如鍍鋅板等)固定罩住;隔墻處可用相同方法,先在隔墻兩側固定鍍鋅鐵皮,然后再往中間填塞不燃材料。承托板與主體結構、幕墻結構及承托板之間的縫隙應采用防火密封膠進行密封。

消防安全是幕墻安全乃至建筑安全的一個重要組成部分,是考慮建筑安全性不容忽視的一個重要方面。一般建筑物由于建筑構造的要求,在幕墻和樓板之間留有較大的縫隙,若對其沒有進行防火封堵密封或封堵密封不好,一旦發生火災,煙火就會由此向上擴散,迅速造成蔓延。
防火密封膠作為幕墻防火的一種輔助材料,根據幕墻防火的要求,防火密封膠需有較好的防火性能。因此,應正確地理解消防要求,正確合理地選用防火材料。
白云DJ-A3-SS607防火密封膠
防火封堵離不開性能優異的防火材料,防火封堵所用的防火密封膠,應符合GB23864-2009《防火封堵材料》要求。GB23864-2009標準最高級別為耐火時間3h。
2001年,白云化工就已經成功研制出防火密封膠產品。
2011年,白云化工研制、開發的DJ-A3-SS607防火密封膠獲得公安部消防產品合格評定中心頒發消防產品型式認可證書,是行業內第一家同類產品通過公安部消防產品合格評定中心消防產品型式認可。

2015年6月,白云化工DJ-A3-SS607防火密封膠通過3C認證機構嚴格的審核,獲得公安部消防產品合格評定中心頒發的中國國家強制性產品認證證書,是行業內第一家獲得該證書的企業。

DJ-A3-SS607防火密封膠不僅完全符合甚至部分指標超過GB 23864-2009耐火等級A3級的性能指標要求,還能滿足GB/T 2408-2008標準的阻燃最高級別:V-0級,且在燃燒時不會放出濃煙或有毒氣體。

DJ-A3-SS607防火密封膠為單組分硅酮密封膠,中性固化,除具有優異的阻燃防火性能,還具有硅酮密封膠優異的耐候性、耐高溫性、粘結性好的優點外,非常適合建筑防火封堵和密封粘結應用領域。
回答時間:2016-9-8